About the Property
A RARE WORK BY ROBERT STONE
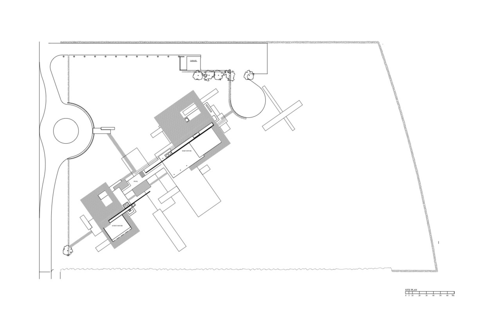
Before his name is mentioned alongside modernist masters Neutra and Schindler, acquire a ROBERT STONE original. The Dreamer Estate - 5 bedrooms, 5 bathrooms, 4,029 square feet on 3.83 acres in Rancho Mirage - is architecture as cultural capital for those who collect design, not compromise to it. Stone, whose Acido Dorado and Rosa Muerta properties were photographed by Steven Klein for Vogue Italia, has created his most complete vision: two structures, DREAMER and LIL' DREAMER, connected by a half-Olympic-length pool that functions as liquid architecture.
THE ARCHITECTURE OF LIGHT
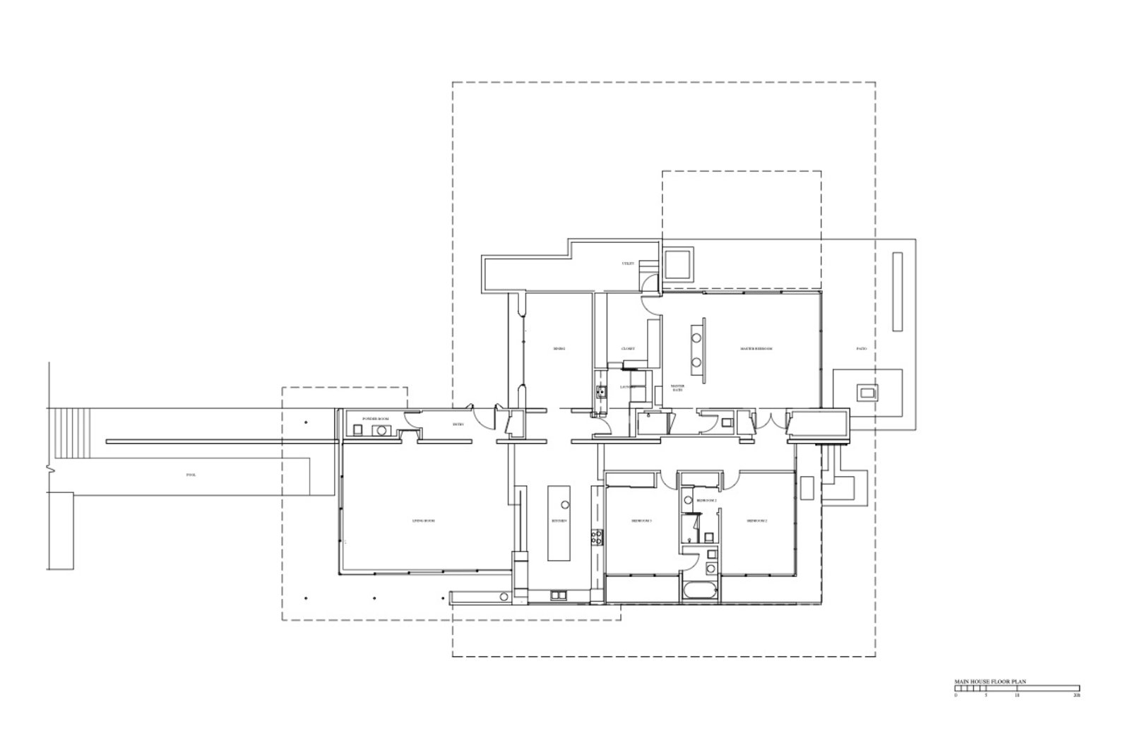
Step inside the main residence where retractable glass walls dissolve into desertscape. Gazing upward, mirrored ceilings capture the San Jacinto mountains, and when sunlight strikes the pool below, liquid gold dances across your living room ceiling - waves of light that shift by the hour, transforming the space into a living gallery. The great room features mirrored ceilings and an open floorplan. A sunken living room creates intimate gathering space, while floor-to-ceiling glass ensures the mountains remain your constant companion.
CULINARY THEATRE
The kitchen defies convention with crocodile-embossed "leather" cabinetry inspired by Japanese tansu and Prada's aesthetic, bespoke stainless hardware, and marble counters. A second kitchen ensures effortless entertaining. Windows flood the space with desert light, while the breakfast bar and kitchen island provide multiple zones for gathering.
SANCTUARY & RETREAT
Your primary suite opens to a private patio with plunge pool and roof opening that frames the night sky - float under stars in complete privacy. The en-suite bathroom features double vanities, marble counters, tile shower, and bidet. Kelly green tile separates bedroom from bath, bold and unapologetic. Walk-in closets with dressing areas provide ample storage. The guest bedrooms, both with en-suites and expansive glass feel like mini-primaries.
LIL' DREAMER: THE GUEST HOUSE
Lil' Dreamer, the two-bedroom guest house, offers the same architectural vision in more intimate scale. A sunken living room, full kitchen, washer and dryer, and stone patio create a self-contained sanctuary. Between the two structures, the half-Olympic-length pool reflects both buildings like a mirror.
OUTDOOR LIVING REDEFINED
The heated in-ground pool stretches between Dreamer and Lil' Dreamer, its gunite and tile construction creating a linear axis. A private heated spa, gas fire pits, and built-in BBQ extend the living space into the landscape. Covered patios with wrap-around design provide shade, while multiple balconies offer elevated mountain views. The landscaped grounds feature nearly four acres in the "Playground of the Presidents" that provide room to expand: tennis court, car gallery, sculpture garden, stables - whatever your vision demands.
DETAILS THAT DEFINE
Every detail was chosen with intention. Hand-placed breeze blocks create sculptural walls that filter light and air. The silver-glazed tile roof reads like a Spanish spaceship. Metallic surfaces shift with the desert sun. Custom window treatments, recessed lighting, and high-speed data wiring throughout ensure modern functionality within the artistic vision. The property includes two-car garage with seven total parking spaces, automatic gate with card/code access, owned security system, and solar panels.
CULTURAL PROVENANCE
Featured in Robb Report, Palm Springs Life, Mansion Global, and most recently Wallpaper, The Dreamer Estate represents a convergence of vision, craft, and cultural significance that rarely appears in the market. When Stone's work enters museum collections and retrospectives, you will own the Rancho Mirage masterpiece. This is not speculation. This is pattern recognition.
TURNKEY & MOVE-IN READY
Presented fully furnished and staged by Interior Illusions, photographed by Yong W Kim. This is architecture as art, living as experience.